- Главная
- Септики Топас
- Топас 8 Пр
Септик Топас 8 Пр
Цена со скидкой 10%
|
Топас-С 8 Пр в наличии (1 компрессор) |
183 330 руб. |
|---|---|
| Цена по акции (доставка + монтаж) | 193 330 руб. |
|
Топас 8 Пр в наличии (2 компрессора) |
204 030 руб. |
| Цена по акции (доставка + монтаж) | 214 030 руб. |
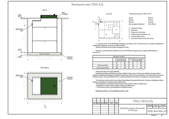
- Для 8-и человек
- Объем переработки: 1.5 м3/сут.
- Залповый сброс: 440 л.
- Вес: 360 кг.
- Длина: 1.6 м
- Ширина: 1.2 м
- Высота: 2.6 м
- Глубина залегания: 90 см
- Потреблeние энергии: 1.6 кВт/сут
Доставка и оплата
- Срок доставки – от 1 дня
- Доставка до 30 км от МКАД – бесплатно
- Доставка свыше 30 км от МКАД – 50 руб/км
- Оплата – наличный или безналичный расчет
Информация по монтажу
Описание Топас 8 Пр
Отличительной особенностью септика 8 Пр является то, что он оснащен насосом, который обеспечивает принудительный отвод чистой воды в точку сброса. Этот процесс является полностью автоматическим, отвод воды осуществляется в канаву или дренажный колодец. Применение данной модели рекомендуется в регионах с уровнем грунтовых вод выше нормы и при условии, что глубина врезки канализационной трубы менее 80 см.
Автономная канализация Топас 8 Пр обладает объемом залпового сброса 440 л. и производительностью 1.5 м3/сутки, что делает его подходящим для домов, в которых число жильцов не превышает 8 чел. Для нормального функционирования системы, в ней должно быть не более одной душевой, одного унитаза и двух раковин.
Принцип работы
Станция очистки сточных вод Топас 8 Пр разработана на основе опыта больших станций очистки сточных вод с мелкопузырчатой аэрацией. Она выполняет очистку, а не аккумуляцию (накопление) хозяйственно-бытовых стоков. Механизм ее работы основан на сочетании биологической очистки с процессом мелкопузырчатой аэрации (искусственная подача воздуха) для окисления органической составляющей сточных вод.
Процесс биологической очистки заключается в биохимическом разрушении микроорганизмами органических веществ. В результате вода из септика выводится очищенной до 98%.
Септик Топас 8 Пр дополнительно комплектуется дренажным насосом, который, при поднятии воды до определенного уровня, принудительно выбрасывает ее из станции. Выходная труба в этом случае устанавливается так, чтобы остатки воды после сброса стекали обратно в резервуар. Очищенные стоки можно сбрасывать в канаву (дренажную, ливневую, придорожную), приемный колодец или в овраг.
Модель Топас 8 Пр с принудительным насосом рекомендуется устанавливать на участках с глиняной почвой (или если у почвы низкий уровень проходимости воды), при высоком уровне грунтовых вод, когда отвод необходим на небольшую возвышенность или на большое расстояние от септика (более 4 метров), если очищенные стоки необходимо отвести на поверхность, например в ливневую канаву.
Комплектация
Топас 8 Пр представляет собой полностью укомплектованную автономную канализацию, готовую к установке и дальнейшей эксплуатации.
Стандартная комплектация септика состоит из таких элементов как:
Допустимое количество сантехники
Человек x8
Раковины x3
Души/ванны x1
Туалеты x2
Стиральные машины x1
Посудомоечные машины x1
Покупайте Топас 8 Пр у официального дилера Топол-Эко!
- Гарантия 3 года от официального дилера!
- Оплата любым удобным способом!
- Наличными
- Банковской картой
- Бесплатная доставка до 30 км от МКАД
- Свыше 30 км: от 50 руб. за 1 км
Похожие товары
Топас 6 Пр
на проживание: 6 человек
переработки: 1 м3/сут.
очищенной воды: принудительный
подводящей трубы: 95 м.
Топас 9 Пр
на проживание: 9 человек
переработки: 1.7 м3/сут.
очищенной воды: принудительный
подводящей трубы: 95 м.
Комплектующие
1 400 руб.
600 руб.
25 руб.
Выполненные работы
Доставка и установка очистных станций
д. Кривая Клетка, база отдыха «Селигер-клуб»
Доставка и установка очистных станций
Тверская обл., д. Скулино
Доставка и установка очистных станций
Тверская обл., г. Кувшиново, ул. Северная, д.39А
Topas-septiki.ru

